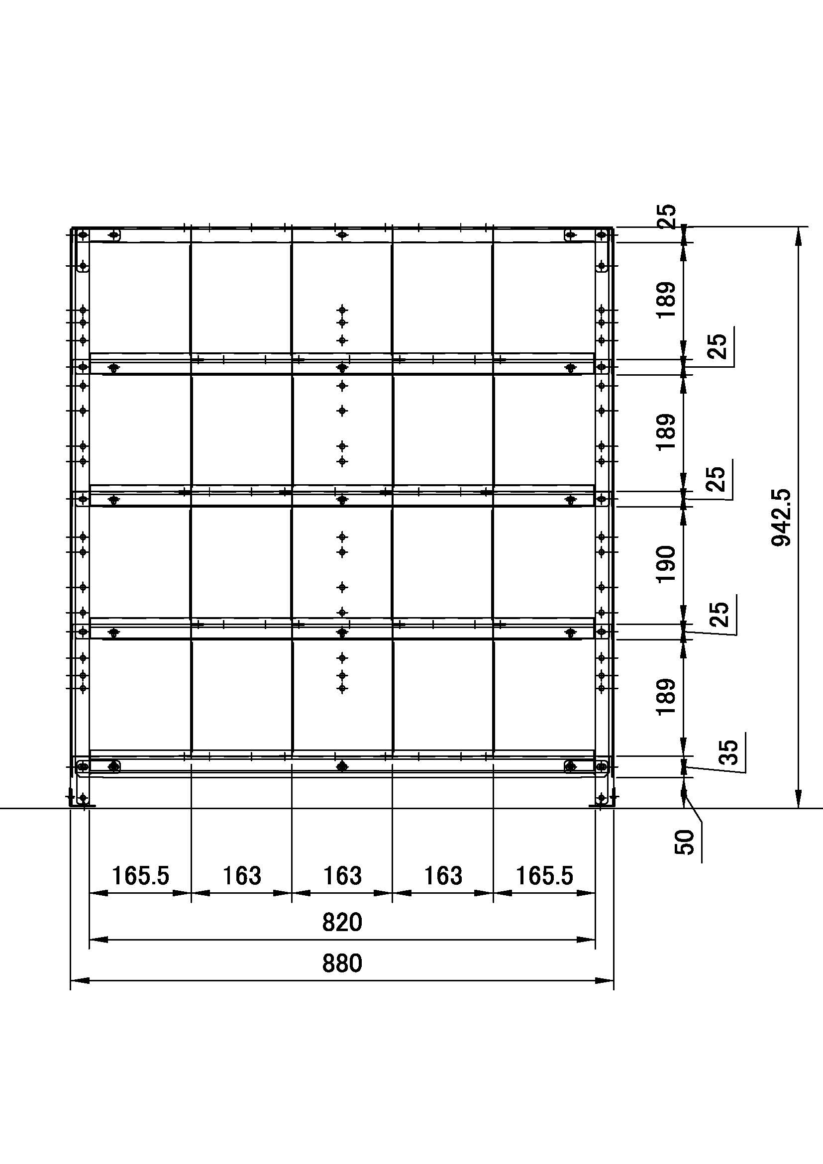
小物部品、パーツ、また伝票、帳票類の整理、整頓が可能です。仕切り板はナイロンプッシュ式に付き、移動が可能で枚数も増減できます。 メールで情報を送る URLをコピーする 区分棚 横5 x 棚板4枚 高さ930 x 横幅900 x 奥行250 在庫有り ¥32,900 ¥32,900(税込) 数量 お気に入り お問い合せ 均等耐荷重 100kg/段※棚板1枚あたり 色 ライトグレー色メラミン焼付塗装 生産国 日本ISO認定工場生産品 棚板の厚さ 25mm 耐荷重 100Kg/段 出荷の目安 実働7-10営業日で出荷 ※在庫がある場合